Trilocale in vendita

Camisano, Via S. Rocco
€ 99.000
Prezzo aggiornato
3 locali 3 locali
90 Mq 90 Mq
1 bagno 1 bagno

Trilocale in vendita

Camisano, Via S. Rocco

Descrizione annuncio

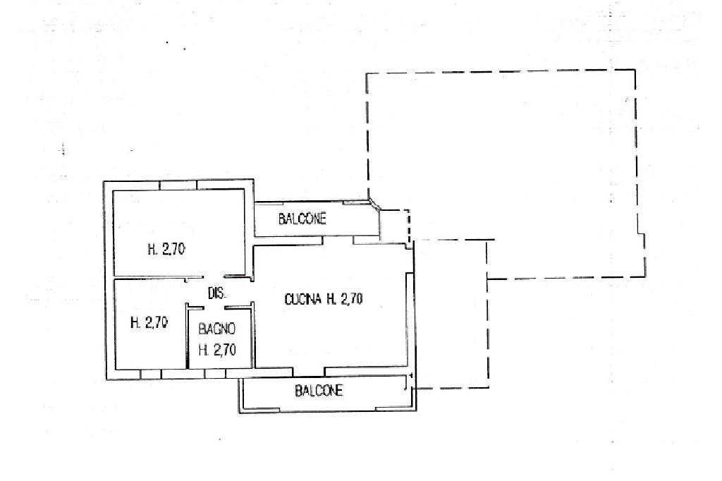
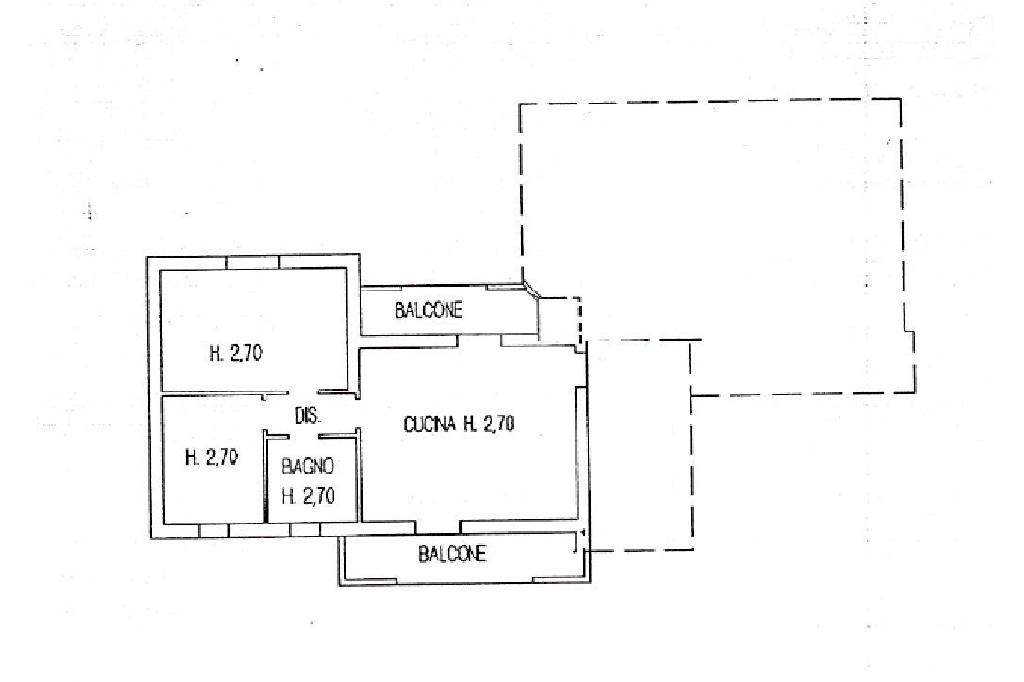
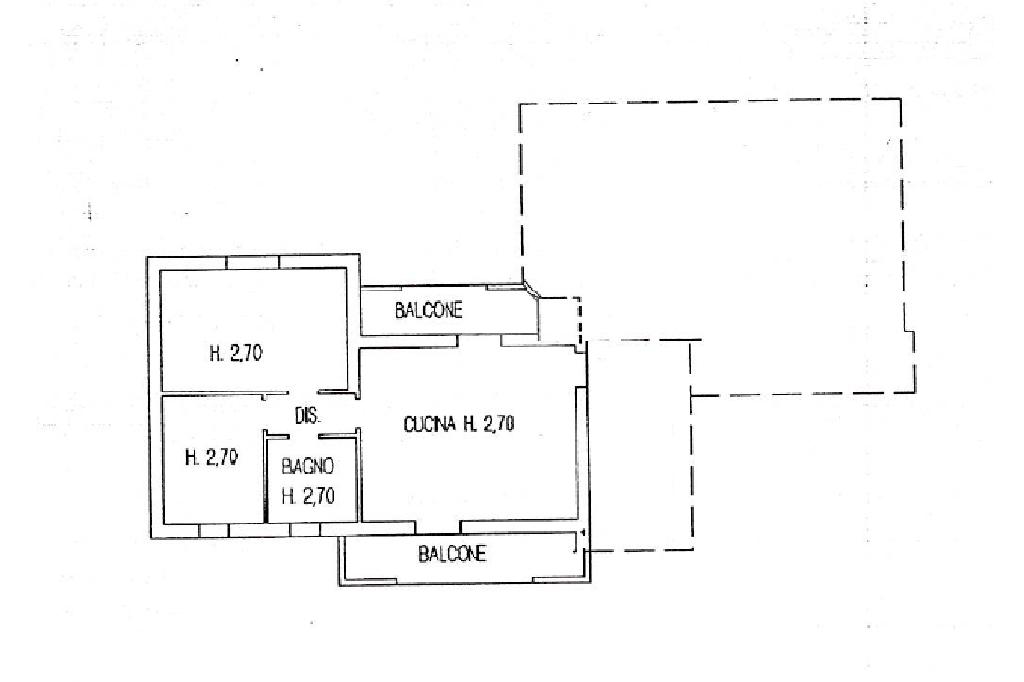
CAMISANO: proponiamo in vendita appartamento trilocale posto al secondo ed ultimo piano.

Accediamo all'appartamento attraverso la porta blindata: all'interno troviamo la zona giorno, con parete cottura e due portefinestre per accedere ai due balconi (uno esposto a sud e uno a nord).

Un disimpegno ci introduce alla zona notte, composta da bagno con doccia, camera matrimoniale e cameretta.

Completa la soluzione il box, piastrellato.

Infissi in legno con doppi vetri, ante esterne in legno con zanzariere, cappotto e caldaia esterna, sul balcone.

Mostra tutto

Nelle vicinanze

Trasporto pubblico Trasporto pubblico
Trasporto pubblico
2,7 Km
Scuole Scuole
Scuola Elementare
2,7 Km
Farmacia Farmacia
Antonietti
2,8 Km
Bar Bar
L'Incontro
2,8 Km
Mostra tutto

Caratteristiche

Rif.:
61109226
Piano:
2 di 2 (ultimo Piano)
Box:
1
Balconi:
2
Camere da letto:
2
Arredamento:
Assente
Mostra tutto
Prezzo Prezzo
€ 99.000
Rata mutuo Rata mutuo
€ 456 / mese
Spese annue Spese annue
€ 0
Proponi il tuo prezzoProponi il tuo prezzo
Immobile valutato con T·Valuta

Classe Energetica

G
G
G
G
G
G
G
G
G
EP globale non rinnovabile:
294.94 kW h/m² anno
EP globale rinnovabile:
528.00 kW h/m² anno
EP invernale del fabbricato:
EP estiva del fabbricato:
Anno di costruzione:
2002
Riscaldamento:
Autonomo
Tipo impianto:
A radiatori
Tipo alimentazione:
Metano

Prezzo ridotto di €1 (6%%)

Ti interessa visionare l'immobile?

Fissa un appuntamento  Fissa un appuntamento

Richiedi informazioni

* Questi campi sono obbligatori

Calcola il tuo mutuo

Semplice e senza impegno
Anticipo

( % )
Mutuo

( % )

pochi semplici passi

inserisci i tuoi dati
Questionario completato
Grazie per aver richiesto un appuntamento senza impegno con un nostro Consulente del Credito e Assicurativo.

Hai inserito correttamente tutti i dati necessari e a breve riceverai una e-mail con un link da convalidare per inviare i tuoi dati.
Affiliato
Tecnosergnano Srl
Viale Rimembranze, 7 26010 Sergnano (CR)

Il nostro staff


  • Angelica Longhi
    Collaboratrice

  • Federica Lentinello
    Collaboratrice

  • Luca Palumbo
    Affiliato

  • Claudio Pezzotti
    Responsabile

  • Salma Zegri
    Collaboratrice

  • Alessandra Sperlari
    Affiliata
Viale Rimembranze, 7 26010 Sergnano (CR)
Zona: Sergnano-Pianengo-Casale Cremasco-Camisano-Castel Gabbiano
Mostra su mappa
Orari: DAL LUNEDI AL VENERDì : 9:00-12:30 14:30-20:00 IL SABATO 9:00-12:30 14:30-18:00
Affiliato
Tecnosergnano Srl
Viale Rimembranze, 7 26010 Sergnano (CR)

2025 Tecnocasa Franchising S.p.A. - P. IVA 08365160152 - Via Monte Bianco 60/A 20089 Rozzano (MI). Ogni agenzia ha un proprio titolare ed è autonoma. Privacy policy | Policy utilizzo | Cookie policy