Rustico in vendita

Camisano, Località Caminetti di Sopra
€ 49.000
Prezzo aggiornato
3 locali 3 locali
266 Mq 266 Mq
1 bagno 1 bagno

Rustico in vendita

Camisano, Località Caminetti di Sopra

Descrizione annuncio

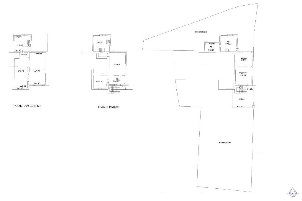
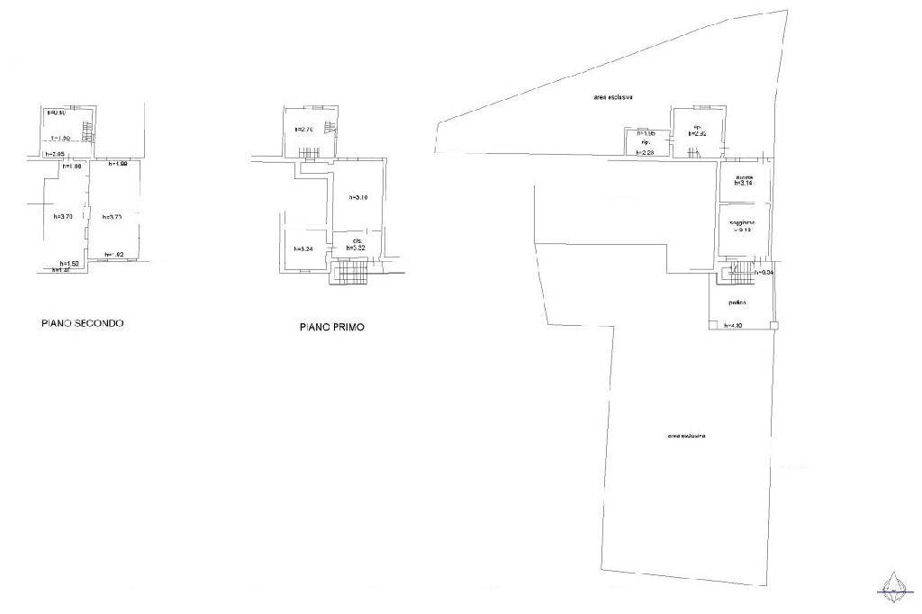
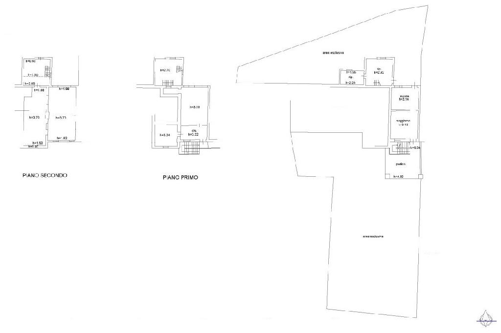
Camisano (CR): proponiamo in vendita casa indipendente con area esclusiva sul fronte e sul retro. L'immobile è completamente da ristrutturare.

L'immobile è così composto: a piano terra troviamo un portico, la cucina, il soggiorno e due ambienti, attualmente adibiti a cantina e ripostiglio, ma da ristrutturare per adibire a bagno e lavanderia. Al piano primo troviamo tre locali (sfruttabili come camere da letto). Completa la soluzione il secondo piano, con altezza al centro superiore a 3 metri.

A pochi metri, troviamo un porticato e uno stabile composto da portico, stalla e soprastante fienile. Ulteriore area esterna privata esclusiva.

Mostra tutto

Nelle vicinanze

Trasporto pubblico Trasporto pubblico
Trasporto pubblico
1,6 Km
SAI
SAI
1,8 Km
Farmacia Farmacia
Dispensario farmaceutico
1,7 Km
Farmacia S. Antonio
1,8 Km
Supermercati Supermercati
EuroSpin
1,4 Km
Negozi Negozi
Le Matte
1,2 Km
Bar Bar
Hologram
1,2 Km
Pop's
1,8 Km
Bar
1,8 Km
Bar Monia
1,8 Km
Ristoranti Ristoranti
Grill SS11
1,3 Km
Da Simone
1,3 Km
L'Angolo della pizza
1,8 Km
Trattoria della Lepre
1,8 Km
Mostra tutto

Caratteristiche

Rif.:
61109291
Piano:
3 di 3 (Piano su più livelli)
Box:
1
Posti auto:
1
Camere da letto:
2
Arredamento:
Assente
Mostra tutto
Prezzo Prezzo
€ 49.000
Rata mutuo Rata mutuo
€ 226 / mese
Spese annue Spese annue
€ 0
Proponi il tuo prezzoProponi il tuo prezzo

Classe Energetica

Questo immobile è esente da classe energetica
Anno di costruzione:
1900
Riscaldamento:
Assente

Prezzo ridotto di €1 (17%%)

Ti interessa visionare l'immobile?

Fissa un appuntamento  Fissa un appuntamento

Richiedi informazioni

* Questi campi sono obbligatori

Calcola il tuo mutuo

Semplice e senza impegno
Anticipo

( % )
Mutuo

( % )

pochi semplici passi

inserisci i tuoi dati
Questionario completato
Grazie per aver richiesto un appuntamento senza impegno con un nostro Consulente del Credito e Assicurativo.

Hai inserito correttamente tutti i dati necessari e a breve riceverai una e-mail con un link da convalidare per inviare i tuoi dati.
Affiliato
Tecnosergnano Srl
Viale Rimembranze, 7 26010 Sergnano (CR)

Il nostro staff


  • Angelica Longhi
    Collaboratrice

  • Federica Lentinello
    Collaboratrice

  • Luca Palumbo
    Affiliato

  • Claudio Pezzotti
    Responsabile

  • Salma Zegri
    Collaboratrice

  • Alessandra Sperlari
    Affiliata
Viale Rimembranze, 7 26010 Sergnano (CR)
Zona: Sergnano-Pianengo-Casale Cremasco-Camisano-Castel Gabbiano
Mostra su mappa
Orari: DAL LUNEDI AL VENERDì : 9:00-12:30 14:30-20:00 IL SABATO 9:00-12:30 14:30-18:00
Affiliato
Tecnosergnano Srl
Viale Rimembranze, 7 26010 Sergnano (CR)

2025 Tecnocasa Franchising S.p.A. - P. IVA 08365160152 - Via Monte Bianco 60/A 20089 Rozzano (MI). Ogni agenzia ha un proprio titolare ed è autonoma. Privacy policy | Policy utilizzo | Cookie policy