Villa singola in vendita

Casale Cremasco-Vidolasco, Piazza Stella
€ 349.000
3 locali 3 locali
135 Mq 135 Mq
2 bagni 2 bagni

Villa singola in vendita

Casale Cremasco-Vidolasco, Piazza Stella

Descrizione annuncio

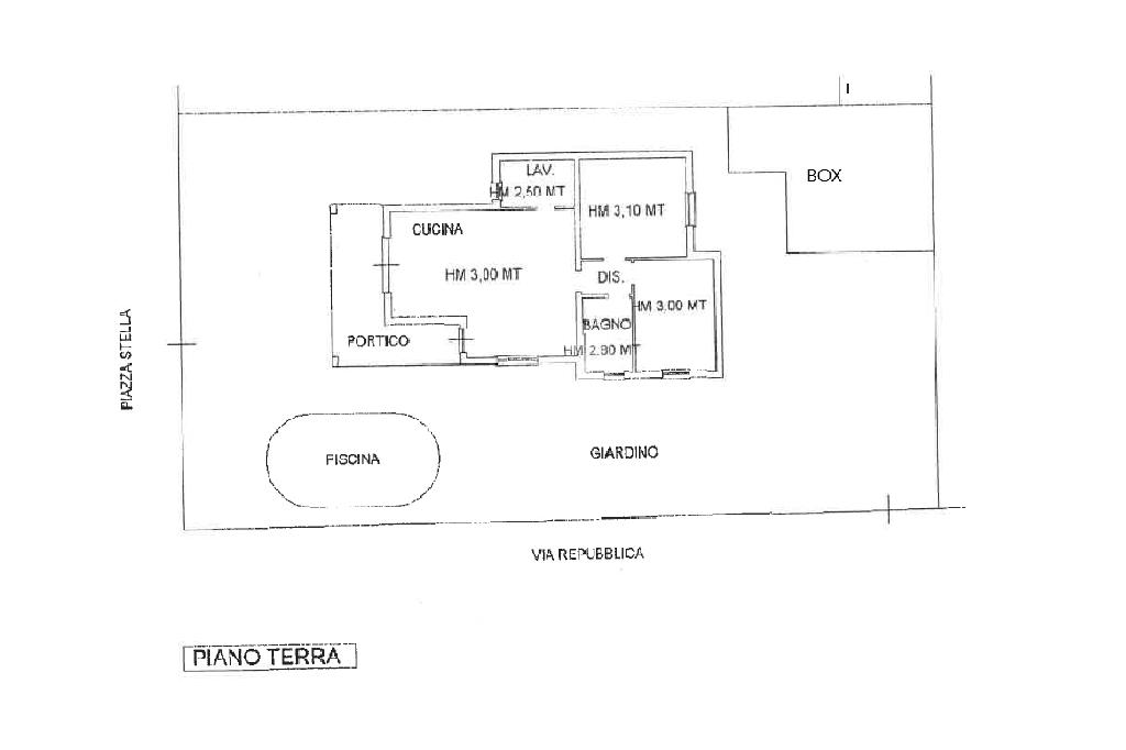
CASALE CREMASCO: Classe energetica A2. In zona di recente sviluppo proponiamo in vendita villa singola in BIO edilizia,disposta tutta su un piano.

La villa è circondata dal giardino e cortile per un totale di 220 mq. Piscina interrata. Portico di 20mq uscendo dalla zona giorno dell'immobile.

L'abitazione è composta da un open space per la zona giorno con spazio relax e zona pranzo, cucina a vista con penisola.

Camera da letto matrimoniale, seconda camera di discrete metrature, lavanderia con attacco per lavatrice e lavatoio e bagno con doccia e sanitari sospesi.

Box di 30mq doppio in larghezza, piastrelato con basculante elettrica.

Sul retro della abitazione troviamo il locale tecnico per il riscaldamento e raffrescamento della villa, tutto completamente elettrico.

La villa presenta ottime finiture, soffitto con travi a vista, cappotto di 10 cm , ante interne ed esterne in pvc, veneziane elettriche e zanzariere su tutti gli infissi, pannelli fotovoltaici 6kw con predisposizione per l'accumulatore. Scaldacqua a pompa di calore, ventilazione meccanica controllata termodinamica a risparmio energetico, ventila, raffresca, riscalda e deumidifica, ricambia l'aria. Cancello elettrico, impianto d'allarme completo sia per la casa sia per il box. Impianto d'irrigazione per il giardino. Venduta completamente arredata.

Casale Cremasco-Vidolasco (Casal e Vidulasch in dialetto cremasco) è un comune italiano di 1.815 abitanti della provincia di Cremona, in Lombardia.

Il territorio è attraversato dalle seguenti strade provinciali:

- la variante della CR SP ex SS 591 ' Cremasca '

- CR SP 12 Sergnano-Camisano

- CR SPO 15 Offanengo-Castel Gabbiano

Mostra tutto

Nelle vicinanze

Trasporto pubblico Trasporto pubblico
Trasporto pubblico
2,2 Km
Scuole Scuole
Scuola Elementare
470 m
Elementare Elvino Benelli
1,2 Km
Farmacia Farmacia
Antonietti
350 m
Piazzalunga
1,4 Km
Negozi Negozi
Sulla Pelle
1,3 Km
Le Briciole
1,3 Km
Bar Bar
L'Incontro
290 m
Centrale
1,2 Km
La Placa
1,2 Km
Bar
1,4 Km
Break Food
1,6 Km
Ristoranti Ristoranti
Tiraboschi
1,3 Km
Mostra tutto

Caratteristiche

Rif.:
61128896
Piano:
1 di 1 (Piano terra con giardino)
Box:
1
Camere da letto:
2
Arredamento:
Completo
Condizionamento:
Autonomo
Mostra tutto
Prezzo Prezzo
€ 349.000
Rata mutuo Rata mutuo
€ 1.657 / mese
Spese annue Spese annue
€ 0
Proponi il tuo prezzoProponi il tuo prezzo

Classe Energetica

A2
A2
A2
A2
A2
A2
A2
A2
A2
EP globale non rinnovabile:
82.59 kW h/m² anno
EP globale rinnovabile:
63.53 kW h/m² anno
EP invernale del fabbricato:
EP estiva del fabbricato:
Anno di costruzione:
2019
Riscaldamento:
Autonomo
Tipo impianto:
A pavimento
Tipo alimentazione:
Pannelli

Ti interessa visionare l'immobile?

Fissa un appuntamento  Fissa un appuntamento

Richiedi informazioni

Clicca su Leggi per aprire l'informativa
* Questi campi sono obbligatori

Calcola il tuo mutuo

Semplice e senza impegno
Anticipo

( % )
Mutuo

( % )

pochi semplici passi

inserisci i tuoi dati
Questionario completato
Grazie per aver richiesto un appuntamento senza impegno con un nostro Consulente del Credito e Assicurativo.

Hai inserito correttamente tutti i dati necessari e a breve riceverai una e-mail con un link da convalidare per inviare i tuoi dati.
Affiliato
Tecnosergnano Srl
Viale Rimembranze, 7 26010 Sergnano (CR)

Il nostro staff


  • Federica Lentinello
    Collaboratrice

  • Luca Palumbo
    Affiliato

  • Claudio Pezzotti
    Responsabile

  • Salma Zegri
    Collaboratrice

  • Alessandra Sperlari
    Affiliata
Viale Rimembranze, 7 26010 Sergnano (CR)
Zona: Sergnano-Pianengo-Casale Cremasco-Camisano-Castel Gabbiano
Mostra su mappa
Orari: DAL LUNEDI AL VENERDì : 9:00-12:30 14:30-20:00 IL SABATO 9:00-12:30 14:30-18:00
Affiliato
Tecnosergnano Srl
Viale Rimembranze, 7 26010 Sergnano (CR)

2026 Tecnocasa Franchising S.p.A. - P. IVA 08365160152 - Via Monte Bianco 60/A 20089 Rozzano (MI). Ogni agenzia ha un proprio titolare ed è autonoma. Privacy policy | Policy utilizzo | Cookie policy